Sprung zum Inhalt

*Bürofläche Hamburg-Altstadt – Nähe Rödingsmarkt und Nikolaifleet*

20457 Hamburg Neustadt, Bürofläche zum Kauf

Kontaktdaten

Harald Leonhard, Leonhard Immobilien e.K.

Objektdaten

  • Objekt ID
    24304
  • Objekttypen
    Büro/Praxis, Bürofläche
  • Adresse
    Reimerstwiete 11
    20457 Hamburg Neustadt
  • Bürofläche ca.
    161 m²
  • Vermietbare Fläche ca.
    161 m²
  • Baujahr
    1986
  • Zustand
    teil-/vollrenoviert
  • Ausstattung
    Standard
  • Status
    vermietet
  • Verfügbar ab
    nach Vereinbarung
  • Käufer­provision
    6,25 % inkl. MwSt.
  • Kaltmiete
    2.817,50 EUR
  • Kaufpreis
    848.000 EUR

Ausstattung / Merkmale

  • Abstellraum
  • Gäste-WC
  • Gewerblich nutzbar
  • Personenaufzug

Energieausweis

  • Energieausweistyp
    Bedarfs­ausweis
  • Ausstellungsdatum
    ab dem 1.5.2014
  • Gültig bis
    12.07.2026
  • Gebäudeart
    Nichtwohngebäude
  • Baujahr lt. Energieausweis
    1986
  • Primärenergieträger
    Gas
  • Endenergie­bedarf
    160,60 kWh/(m²·a)
  • Endenergie­bedarf Strom
    29,80 kWh/(m²·a)
  • Endenergie­bedarf Wärme
    107,90 kWh/(m²·a)
0 25 50 75 100 125 150 175 200 225 250+ H G F E D C B A A+ H G F E D C B A A+ Endenergiebedarf Strom 29,80 kWh/(m²·a) Endenergiebedarf Wärme 107,90 kWh/(m²·a)

Objekt­beschreibung

Beschreibung

Jetzt schon digital besichtigen – 360°-Onlinebesichtigung verfügbar!

Zwischen Nikolaifleet und Rödingsmarkt, im historischen Herzen der Hamburger Altstadt, präsentiert sich die Reimerstwiete 11 als hanseatisches Kontorhaus mit klassischer Ausstrahlung und moderner Funktionalität.

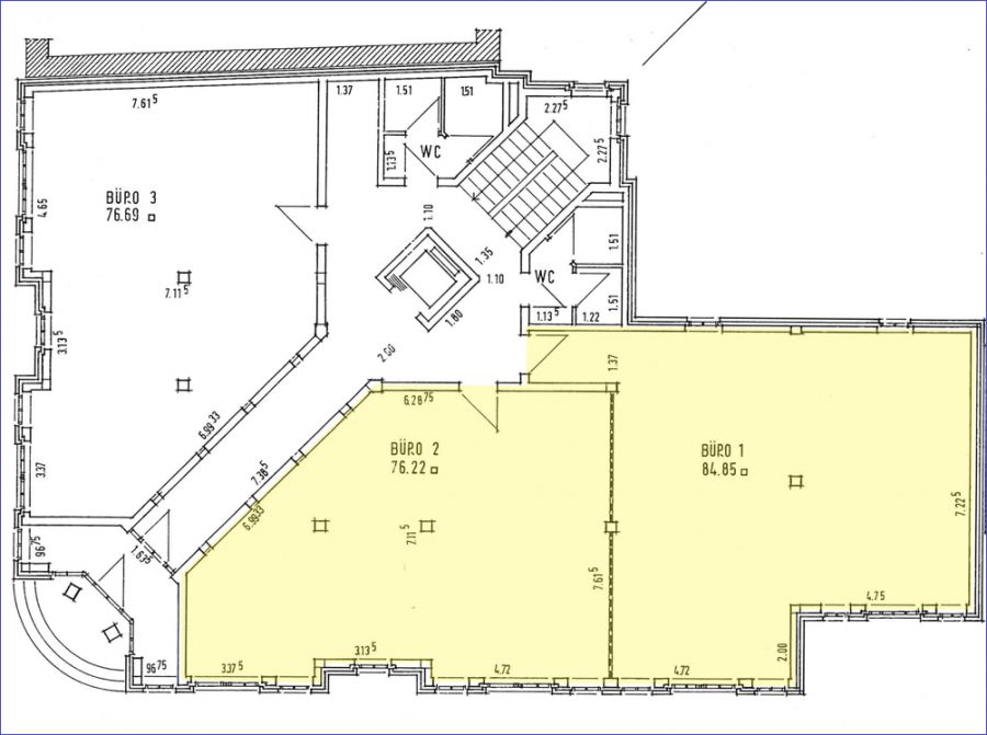
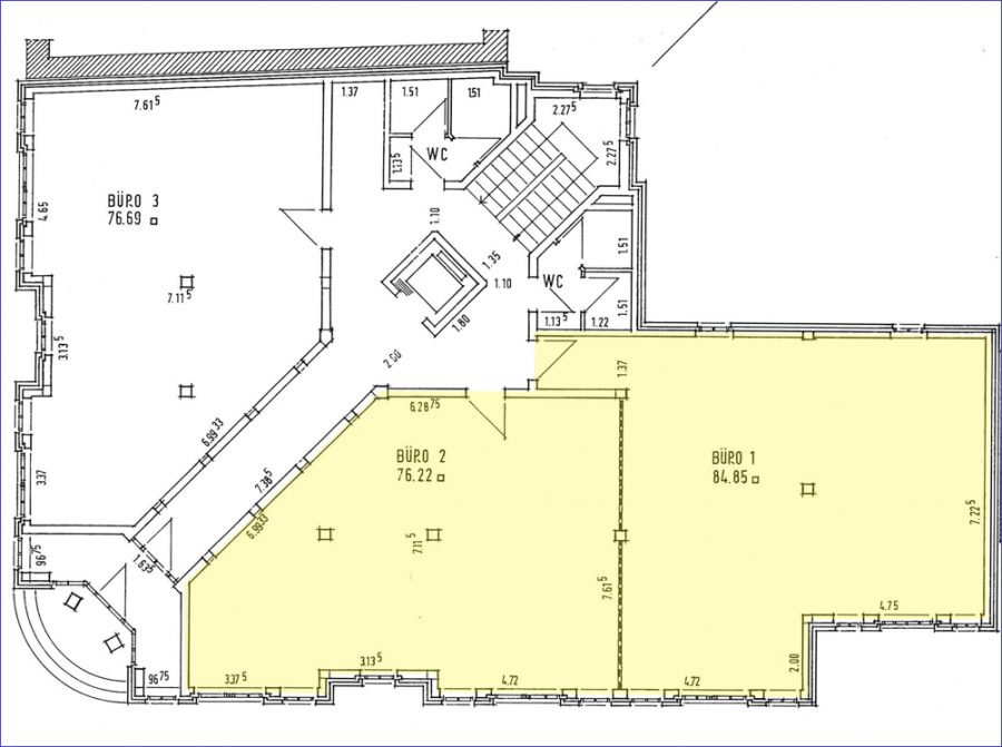
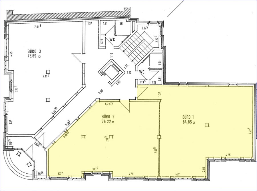
Zwei im Grundbuch getrennt eingetragene Büroeinheiten bilden derzeit eine zusammenhängende Fläche von rund 161 m² – ideal für repräsentatives Arbeiten in bester Lage.

Highlights:

Repräsentativer Altstadtstandort zwischen Speicherstadt und HafenCity

Zwei eigenständige, derzeit zusammengelegte Büroeinheiten (85 m² / 76 m²)

Langfristig vermietet bis 2029 mit Staffelsteigerungen – planbare Erträge

Klassische Kontorhausarchitektur mit hohen Decken und bodentiefen Fenstern

Sehr gute Anbindung: Rödingsmarkt fußläufig gut erreichbar

Die Reimerstwiete 11 steht für hanseatische Solidität und ein Arbeitsumfeld mit Atmosphäre – ruhig, präsent und von gewachsener Qualität. Eine Kapitalanlage, die durch Lage, Struktur und Beständigkeit überzeugt.

Jetzt Kontaktformular ausfüllen und Ihren persönlichen Besichtigungstermin – digital oder vor Ort – vereinbaren!

Ausstattung

Gesamtfläche: ca. 161 m² (Büro 1 ≈ 85 m² / Büro 2 ≈ 76 m²)

Baujahr: 1986

Einheiten: zwei im Grundbuch getrennt eingetragene Büros, aktuell zusammengelegt

Vermietung: langfristig bis 31.03.2029 mit Staffelsteigerungen

Zustand: gepflegt, klare Struktur, funktionale Ausstattung

Architektur: klassisches Kontorhaus mit Ziegelfassade und bodentiefen Fenstern

Raumqualität: helle, großzügige Räume mit hoher Decke und klarer Linienführung

Technik: moderne Beleuchtung, solide Elektro- und Netzinstallation

Hausgeld: 572 €/Monat (davon 91 €/Monat Zuführung zur Rücklage)

Verfügbarkeit: nach Vereinbarung

Kaufpreis: 848.000 €

Courtage: 6,25 % inkl. MwSt. vom Kaufpreis

Eine Immobilie mit Haltung – hanseatisch klar, wertbeständig und mitten im wirtschaftlichen Zentrum Hamburgs.

Lage

Mitten in der Hamburger Altstadt, nur wenige Meter vom Nikolaifleet entfernt, liegt die Reimerstwiete 11 – ein Ort, an dem die Geschichte der Hansestadt spürbar bleibt und modernes Arbeiten seinen Platz findet.

Das Umfeld wird geprägt von historischen Kontorhäusern, Banken, Kanzleien und kleinen Geschäften. Zahlreiche Cafés und Restaurants bieten Abwechslung in der Mittagspause, während die Elbe und die Speicherstadt zum kurzen Innehalten einladen. Die U- und S-Bahn-Station Rödingsmarkt ist in rund 5 Gehminuten erreichbar; bis zum Hamburger Hauptbahnhof sind es etwa 7 Minuten mit dem Auto oder 14 Minuten mit öffentlichen Verkehrsmitteln.

Die Altstadt verbindet Urbanität mit Ruhe – kurze Wege, solide Nachbarschaft, gewachsene Strukturen. Hier arbeitet man nicht nur zentral, sondern in einem Umfeld, das Hamburg atmet.

Google Maps

Mit dem Laden der Karte akzeptieren Sie die Datenschutzerklärung von Google.
Mehr erfahren

Karte laden

Direktanfrage

 SSL-verschlüsselt
Immobiliendaten-Import und Darstellung für WordPress: WP-ImmoMakler®